TRANSPORT GRATUIT Fosa septica 5000l bicamerala 48601050000 AquaClean Valrom
In fosa septica, apele menajere se limpezesc partial si apoi sunt evacuate in puturi absorbante sau drenuri iar namolul depus pe fundul fosei fermenteaza timp indelungat 6 luni, transformandu-se din punct de vedere chimic pana la mineralizare prin actiunea organismelor vii si este indepartat dupa acest interval prin vidanjare. Fosele septice degaja puternic gaze de mlastini, amoniac (NH4), bioxid de carbon (CO2), hidrogen sulfurat (H2S) si foarte putin metan (CH4), de aceea este necesara o aerisire eficienta.
Atentionari de utilizare ale unei fose septice bicamerala:
- Numai pentru ape menajere
- NU introduceti in fose ape pluviale sau apa din piscine
- Inainte de instalare si exploatare asigurati–va ca puteti drena apa limpezita
- Locul de montare trebuie sa permita accesul vidanjei
- Asigurati–va ca fosa este ventilata suficient, iar distanta intre 2 capete de ventilatie este de maxim 15m
- NU se monteaza in zone cu panza freatica ridicata sau inundabile
- Apa rezultata NU poate fi utilizata la irigatii
De ce sa alegi o Fosa septica 48601050000 Valrom?
Fosa septica ecologica, fabricata din polietilena, poate fi reciclata la sfarsitul duratei de viata. Materialul reciclat poate fi folosit pentru fabricarea altor articole ajutand la protectia mediului inconjurator.
Punere in opera
Montarea se face conform proiectului de executie intocmit de proiectantul specializat in domeniul retelelor exterioare. Proiectul de executie se realizeaza ca urmare a evaluarii conditiilor de montare si cuprinde: date topografice (spatiul de montare, vecinatati, curbe de nivel), geotehnice si climaterice ale zonei in care este situat amplasamentul, precum si configurarea sistemului din care face parte fosa septica, corelat cu celelalte instalatii. Fosele se monteaza pe radiere de beton de 10-30 cm dimensionate conform conditiilor hidrogeologice. Fosele septice cu dren asociat NU se monteaza in terenurile cu apa freatica, inundabile, mlastinoase, terenurile sensibile la umezire, tasabile, sau cu capacitate portanta redusa, nici pe versantii cu pante abrupte sau versantii instabili care isi pot pierde stabilitatea datorita lucrarilor de montare a foselor. Montajul fosei septice este permis la o distanta de minim 5m de baza pantei si cu executia unui zid de sprijin calculat static sa suporte presiunea pamantului, care va fi situat la o distanta de minim 1m de fosa. Spatiul in care se va monta fosa septica trebuie sa fie suficient de larg astfel incat sa fie asigurata intretinerea ei. Distanta recomandata fata de locuinta, de alte fundatii (de exemplu gard) si de pante este de 5 metri. Daca in zona de montare sunt prezente alte instalatii, fundatii de gard, se vor executa lucrari de protectie atat a fosei cat si a obstacolului respectiv. Se verifica daca spatiul de montare este expus infiltratilor din ploi, topirea zapezii, de exemplu spatiul din vecinatatea burlanelor, iar in caz ca da, vor trebui facute lucrari de drenare a apei din zona fosei. Daca fosa se instaleaza in apropierea zonelor carosabile de vehicule cu masa mai mare de 12 tone, distanta minima de la fosa pana la carosabil trebuie sa fie mai mare sau egala cu adancimea sapaturii. Din studiul geotehnic se vor evalua: calitatea solului (stabilitate, rezistenta), nivelul apei freatice maxime (care tine cont si de variatia ascensionala a nivelului acesteia dupa perioade de precipitatii intense), riscurile de acumulare a apei pluviale. Pentru a evita eventulele mirosuri neplacute in incinta locuintei, va recomandam montarea intre locuita si fosa septica a unui camin cu sifon si clapeta de sens .
ATENTIE!
- Pericol de alunecare si cadere in rezervor – personalul care instaleaza sau executa operatii de mentenanta va purta echipament de protectie si va evita pe cat posibil accesul in rezervor.
- Gaze toxice – atmosfera din interiorul rezervorului poate contine gaze toxice (monoxid de carbon, metan, dioxid de carbon etc). Numai personalul care asigura intretinerea si cel al firmei producatoare sunt admise sa inspecteze rezervorul in interior si numai dupa o aerisire suficienta. Daca apare senzatia de greata sau voma parasiti zona imediat.
- Asistenta – de fiecare data cand o persoana intra in rezervor trebuie asistata de o alta in exterior. Niciodata nu intrati in rezervor dupa o persoana care este inconstienta, totdeauna incercati sa o extrageti afara. In oricare din situatii solicitati imediat ajutor.
- Curatare – la interventii purtati intotdeauna echipament de protectie – imbracaminte, incaltaminte si manusi. Pe cat posibil evitati contactul cu apa uzata. Pentru curatare nu folositi instalatii cu apa de inalta presiune, presiunea din instalatia curenta de apa potabila este, in mod normal, suficienta.
Etapele de montare pentru bazin de fosa septica
- Trasarea/Pichetarea – se marcheaza reperele pentru montarea fosei septice.
- Se sapa groapa de instalare cu dimensiuni suficiente astfel incat sa existe un spatiu de 40-50 cm in jurul fosei septice, spatiu necesar manipularii acesteia la montare si realizarii compactarii umpluturii din jurul ei. Adancimea gropii trebuie sa permita executia radierului, iar baza ei trebuie sa fie plana, ferma si uscata (fara ape subterane sau meteorice). Se recomanda sa nu se modifice baza gropii, iar in caz ca a fost modificata trebuie obligatoriu restabilita capacitatea portanta initiala. Fosele se monteaza pe radier de beton de 10-30 cm dimensionat conform conditiilor hidrogeologice. Sapatura se executa, de regula, mecanizat, dar in zone cu instalatii subterane, sapatura se face manual. Pe masura adancirii sapaturii, se iau masuri de consolidare a peretilor prin efectuarea sprijinirilor corespunzatoare. Concomitent, se iau si alte masuri de tehnica securitatii muncii, indicate pentru lucrari de acest fel.
- Se executa radierul de beton, ı̂n functie de solutia configurata. Respectati reteta impusa de proiectul de executie al radierului. Planeitatea radierului este de ±5 mm. Radierul trebuie sa asigure ca fosa nu se scufunda in pamant si nu se dezechilibreaza.
- Se aseaza fosa septica pe radier, numai dupa ce betonul s-a maturat, folosindu-se franghii prinse de manerele de manipulare. Aceasta trebuie sa fie asezata intr-o pozitie stabila si ferma.
- Se conecteaza la instalatia de canalizare si cea de drenare a apei. Montarea se face asigurand etanseitatea conexiunilor. Se poate realiza ventilatie la fosa, numai in zone plate ale rezervorului (zone posibile pe capac intre ranforsari, pe capac, pe calota rezervorului), etansarea intre rezervor si tubul de ventilatie se face cu garnitura de racord.
- Se monteaza piesa (prelungirea) pentru reglarea nivelului capacului (in caz ca este necesar). Pentru a asigura etansarea dintre rezervorul fosei si prelungire se monteaza garnitura, iar pentru fixare se utilizeaza colierul metalic (piesa de fixare). Pentru a usura montarea prelungirii se utilizeaza lubrifiant pe baza de silicon. NU se utilizeaza uleiuri sau grasimi minerale. Inainte de montare, componentele si pozitiile in care se vor monta trebuie sa fie curate (fara nisip, pietris, moloz, etc); de acest lucru depinde siguranta imbinarii.
- Se umple rezervorul fosei la cca. 1/3 cu apa si se incepe executarea umpluturii. In sol stabil/compactat (vegetal), spatiul dintre rezervorul fosei si groapa se umple cu straturi de circa 25-30 cm de pamant excavat si selectionat fara pietre, moloz sau alte particule proeminente care pot zgaria peretii rezervorului, sau nisip cu o granulatie de 4/16 mm (conform DIN 4226, partea intai) si se compacteaza minim 90% grad Proctor. Cand groapa este umpluta pana la nivelul apei din rezervorul fosei, se continua umplerea cu apa si umplerea gropii in straturi succesive compactate minim 90%.
- Practic dupa montare si conectare la sistemul de infiltrare in sol/dren , fosa e gata de utilizare. Fosa va fi obligatoriu umpluta cu apa curata atat inainte de punerea in functiune cat si dupa fiecare vidanjare.
Accesorii:
- GARNITURA ETANSARE PENTRU CAPAC REZERVOR APA SUBTERAN KOMPACTKIT VALROM 47901000116 (vezi produsul aici)
- PIESA FIXARE PRELUNGIRE KOMPACTKIT VALROM 47901000125 (vezi produsul aici)
- PRELUNGIRE PENTRU FOSE SAU STATII EPURARE SAU REZERVOARE APA SUBTERANE L=600MM AQUACLEAN VALROM 48710000604 (vezi produsul aici)
Specificatii tehnice:
- Standard fabricatie: SR EN 12566-1:2000/A1:2003
- Materiale: rezervor din polietilena, racorduri si ventilatie din polipropilena
- Culoare: bazin orange , racorduri : gri/orange
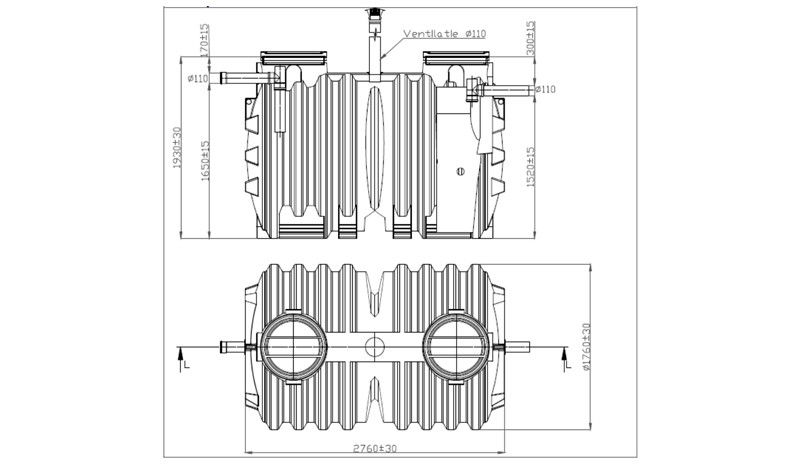
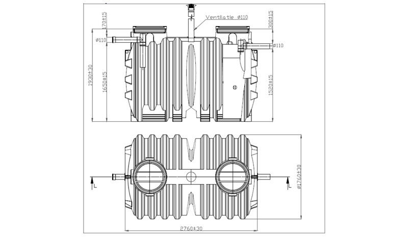
- Volum: 4700 l
- Lungime: 2760 mm
- Latime: 1760 mm
- Inaltime: 1930 mm
- Conexiuni intrare/iesire: Ø 110
- Zone de acces: 2 x 630 mm
- Masa: 300 kg
