Toate informațiile despre produsele de pe ekoinstal.ro sunt verificate și actualizate periodic. Pot apărea diferențe între imagini și produsul real, iar specificațiile pot fi modificate de producător. Promoțiile sunt disponibile doar în limita stocurilor existente.
Facilitati:

Caracteristici: Promotia lunii
Durata de livrare: 5-45 zile lucratoare
In fosa septica, apele menajere se limpezesc partial si apoi sunt evacuate in puturi absorbante sau drenuri, iar namolul depus pe fundul fosei fermenteaza timp indelungat 6 luni, transformandu-se din punct de vedere chimic pana la mineralizare prin actiunea organismelor vii si este indepartat dupa acest interval prin vidanjare.
Fosele septice degaja puternic gaze de mlastini, amoniac (NH4), bioxid de carbon (CO2), hidrogen sulfurat (H2S) si foarte putin metan (CH4), de aceea este necesara aerisire eficienta.
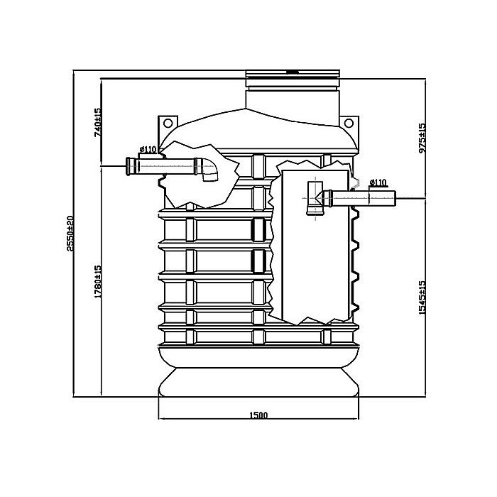
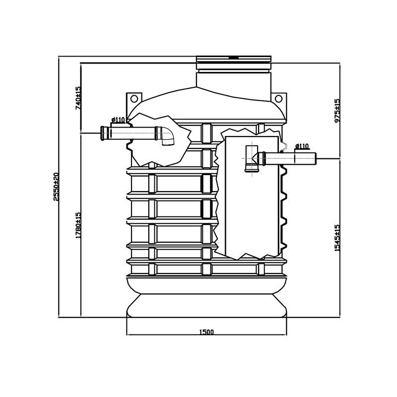
Fosa septica ecologica bicamerala, fabricata din polietilena, poate fi reciclata la sfarsitul duratei de viata. Materialul reciclat poate fi folosit pentru fabricarea altor articole ajutand la protectia mediului inconjurator.

ATENȚIE! Adancimea maxima de montare este de 2850 mm in cazul montarii in regim de fosa cu drenaj asociat, si de 2550mm in cazul utilizarii ca bazin vidanjabil.
Montarea se face conform proiectului de executie intocmit de proiectantul specializat in domeniul retelelor exterioare. Proiectul de executie se realizeaza ca urmare a evaluarii conditiilor de montare si cuprinde: date topografice (spatiul de montare, vecinatati, curbe de nivel), geotehnice si climaterice ale zonei in care este situat amplasamentul, precum si configurarea sistemului din care face parte fosa septica, corelat cu celelalte instalatii. Din studiul geotehnic se vor evalua: calitatea solului (stabilitate, rezistenta), nivelul apei freatice maxime (care tine cont si de variatia ascensionala a nivelului acesteia dupa perioade de precipitatii intense), riscurile de acumulare a apei pluviale. Instalatiile de canalizare care cuprind fosa si dren trebuie ventilate corespunzator distanta intre 2 capete de ventilatie este de maxim 15m. Capetele de ventilatie trebuie montate in asa fel incat aerul sa nu fie evacuat in zone in care poate deranja. Pentru a evita eventulele mirosuri neplacute in incinta locuintei, va recomandam montarea intre locuita si fosa septica a unui camin cu sifon si clapeta de sens.
Fosa se monteaza pe radier de beton de 10-30 cm dimensionat conform conditiilor hidrogeologice. Fosa septica cu drenul asociat NU se monteaza in terenurile cu apa freatica, inundabile, mlastinoase, terenurile sensibile la umezire, tasabile, sau cu capacitate portanta redusa, nici pe versantii cu pante abrupte sau versantii instabili care isi pot pierde stabilitatea datorita lucrarilor de montare a foselor. Montajul fosei septice este permis la o distanta de minim 5m de baza pantei si cu executia unui zid de sprijin calculat static sa suporte presiunea pamantului, care va fi situat la o distanta de minim 1m de fosa. Spatiul in care se va monta fosa septica trebuie sa fie suficient de larg astfel incat sa fie asigurata intretinerea ei si sa permita accesul vidanjei. Distanta recomandata fata de locuinta, de alte fundatii (de exemplu gard) si de pante este de minim 5 metri. Daca in zona de montare sunt prezente alte instalatii, fundatii de gard/constructii, se vor executa lucrari de protectie atat a fosei cat si a obstacolului respectiv. Se verifica daca spatiul de montare este expus infiltratilor din ploi, topirea zapezii, de exemplu spatiul din vecinatatea burlanelor, iar in caz ca da, vor trebui facute lucrari de drenare a apei din zona fosei. Daca fosa se instaleaza in apropierea zonelor carosabile de vehicule cu masa mai mare de 12 tone, distanta minima de la fosa pana la carosabil trebuie sa fie mai mare sau egala cu adancimea sapaturii.
IMPORTANT! Personalul care va realiza manipularea, instalarea si intretinerea foselor septice trebuie sa fie calificat, cu experienta pentru acest tip de munca si dotat cu echipamente - utilaje adecvate. Este obligatorie respectarea normelor de securitatea si sanatatea in munca specifice si a regulilor de prevenire a accidentelor. Montarea foselor septice presupune excavatii, conectarea fosei la instalatia de canalizare, respectiv infiltrare in sol si inchiderea excavatiei. Riscurile care pot aparea sunt de: cadere, inec, prabusire maluri, si altele. Nerespectarea prezentei instructiuni si prevederilor normativelor in vigoare in Romania poate duce la deteriorarea considerabila a produselor utilizate, la vatamari a persoanelor sau accidente mortale. Pentru situatii necuprinse in prezenta instructiune, contactati producatorul! Fosele septice NU se monteaza in perioade cu temperaturi sub 5° C (atat noaptea cat si ziua) sau cu umiditate excesiva. Lucrarea de montare este permisa numai dupa ce executantul a primit toate detaliile de executie, avizele si acordurile necesare, autorizatia de construire si acordul beneficiarului.
Este permis accesul pietonal deasupra unui fosei septice montate conform acestor instructiuni, dar NU este admisa circulatia automobilelor, camioanelor sau a oricaror vehicule, inclusiv biciclete.
Fosa septica se vidanjeaza cel putin la 6 luni, si se repune in functiune. Odata la 2 ani se curata bazinul fosei si se vizualizeaza atat starea acestuia cat si a componentelor interioare.

Taxa verde: Pretul include taxa verde
Fosa este dimensionată pentru gospodării cu 3–5 persoane, asigurând tratarea eficientă a apelor uzate menajere.
Structura bicamerală permite o decantare mai eficientă a solidelor, îmbunătățind procesul de pretratare a apei uzate.
Da. Vidanjarea se face periodic, în funcție de gradul de utilizare și recomandările producătorului, pentru menținerea performanței.
În general, da, însă se recomandă evaluarea solului și respectarea instrucțiunilor de montaj pentru stabilitate și funcționare corectă.
Da. Materialul din polietilenă asigură etanșeitate ridicată și protecție împotriva infiltrațiilor în sol.