TRANSPORT GRATUIT Separator grasimi subteran NG4 4L/S 1170L necarosabil vertical 48910000400 Aquaclean Valrom
Separatoarele de grasimi sunt folosite pentru retinerea grasimilor din apele uzate menajere sau provenite din industria alimentara, carmangerii, cantine, etc. Scopul lor este de a proteja conductele de canalizare impotriva colmatarii. Separatoarele de grasimi se instaleaza acolo unde exista ape uzate cu continut ridicat de grasimi, cat mai aproape posibil de locul unde acestea se formeaza.
Separatorul de grasimi Valrom contine capac necarosabil.
Avantaje si beneficii separator grasimi subteran
- Rezistent la montaj ingropat, nu se deformeaza, proprietate pe care o confera forma geometrica ranforsata, nu necesita lucrari suplimentare precum cofraje, ramforsari metalice etc.;
- Montajul subteran asigura protectia caminului in cazuri de incendiu sau acte de vandalism;
- Usor de transportat si asamblat deoarece este confectionat din polietilena si are greutate mica in comparatie cu variantele din beton. Nu necesita echipamente speciale de ridicare;
- Deoarece este realizat din polietilena, pentru montajele subterane acest lucru poate compensa deplasarile datorate cutremurelor sau miscarilor pamantului;
- Usor de instalat: sunt disponibile echipamente suplimentare pentru ajustarea inaltimii la nivelul solului si pentru montarea in diferite clase de incarcare: A, B sau C. In functie de necesitati, poate fi adaptata pentru trafic carosabil sau necarosabil;
- Instalarea este simpla iar amprenta pe sol si spatiul necesar sunt minime;
- Fara amenzi pentru agentii economici care genereaza ape uzate cu continut ape uzate cu continut de grasimi;
- Este ecologic deoarece polietilena poate fi reciclata la sfarsitul duratei de viata. Materialul reciclat poate fi folosit pentru fabricarea altor articole ajutand la protectia mediului inconjurator;
- Usor de curatat si intretinut deoarece tehnologia de fabricatie produce suprafete netede, cu rugozitate mica. Astfel caminul este usor de curatat, nu faciliteaza depunerile, scurtand durata de curatare si micsorand consumul de apa;
- Absolut insensibil la coroziune;
- Datorita gurii de acces permite accesul usor al unei persoane in interior si asigura spatiu suficient pentru curatare.
- Deoarece este realizat monobloc acesta este etans si nu permite infiltrari in sol. Imbinarile sunt in afara zonelor active iar acolo unde exista sunt fie sudate fie se pot etansa cu garnituri de cauciuc.
- Nu consuma curent pentru ca functioneaza pe baza principiului de separare gravitationala;
- Capacitate mare de stocare a aluviunilor/particulelor grosiere;
- Rezistent la mediile chimice – polietilena este rezistenta la acizii grasi si derivatii acestora prezenti in apele uzate provenind din zona alimentara. Acesta inseamna durata mare de viata in exploatare prin lipsa coroziunii. Nu necesita tratamente de suprafata si nici sisteme de ventilatie.
- Economic – Vidanjari mai putine, respectiv reducere costuri deoarece are o capacitate mare de stocare a aluviunilor/particulelor grosiere.
- Fara miros deoarece este prevazut cu capac etans din polietilena.
Domeniu de utilizare separator grasimi subteran
Separatoarele de grasimi aquaClean sunt folosite pentru retinerea grasimilor din apele uzate menajere sau provenite din industria alimentara, carmangerii, cantine, etc. Scopul lor este de a proteja conductele de canalizare impotriva colmatarii.
Separatoarele de grasimi se instaleaza acolo unde exista ape uzate cu continut ridicat de grasimi, cat mai aproape posibil de locul unde acestea se formeaza.
Principiu de functionare separator grasimi subteran necarosabil
Un separator de grasimi este parte a unui sistem care permite separarea, retinerea si ulterior indepartarea grasimilor si a uleiurilor de origine organica din apele uzate. Conform EN 1825-1, sunt considerate de origine organica grasimile si uleiurile de origine vegetala / animala care sunt putin solubile sau insolubile si sunt saponificabile. Grasimile de origine animala includ: seu, grasimi din lapte (unt, smantana, etc.), ulei de peste, etc. Grasimile de origine vegetala includ: margarina, ulei alimentar (floarea soarelui, masline, porumb), etc.
Atentie!
Grasimile si uleiurile emulsionate si dispersate fin in masa apoasa nu pot fi separate eficient in separatoarele uzuale de grasimi.
In cazul in care cerintele sunt mult mai drastice decat cele impuse de standardele in vigoare, vor fi prevazute etape ulterioare de epurare.
La separatoare subterane se recomanda ca montarea si vidanjarea sa se faca de catre personal specializat.
Asigurati-va ca ati primit toate instructiunile de montaj si intretinere in momentul achizitiei.
In separatorul de grasimi NU SE RECOMANDA deversarea de ape uzate provenite de la toalete si chiuvete de la baie. Pentru astfel de aplicatii se va utiliza o statie de epurare sau fosa septica.
Atentie!
- Separatoarul de grasimi trebuie instalat într-un spatiu deschis, cât mai aproape de sursa de apa uzata cu continut de grasimi în sistemul de canalizare. Temperatura apei cu grasimi trebuie sa se incadreze intre 25-40C. Trebuie prevazut cu spatiul necesar pentru accesul vehiculelor de vidanjare.
- Trebuie evitat pe cât posibil conductele cu lungime mare în care se pot dezvolta depozite pe pereti.
- Pentru a evita dezvoltarea mirosului neplacut, conductele de alimentare si evacuare trebuie aerisite. Aerisirile trebuie montate în asa fel încât aerul sa nu fie evacuat în zone în care poate deranja.
- Nu se admite ca scurgerile de la grupurile sanitare sa fie eliminate prin separatorul de grasimi.
- In amonte de separatoare nu se monteaza te statii de pompare. În situatiile în care nivelul hidraulic din separator este sub nivelul canalizarii în care se face evacuare se instaleaza statii de pompare si a clapeta de sens in aval de separator.
- Pentru verificarea calitatii apei pretratate trebuie montat in aval un camin de prelevare probe.
- Zonele de montare a separatoarelor recomandate sunt zone necarosabile.
Etape de montare:
- Se sapa groapa de constructie in asa fel incat sa existe un spatiu de 30-40 cm in jurul peretilor separatorului necesar operatiilor de manipulare la montaj a separatorului si de compactare a straturilor umpluturii. Baza gropii de constructie trebuie sa fie plana. Se executa un radier de beton. Planeitatea placii de fundatie este de ± 5 mm. Grosimea placii din beton trebuie sa fie dimensionata conform conditiilor hidrogeologice si statice ale pamantului (grosime trebuie sa corespunda rezistentei substratului de pamant)
- Se introduce separatorul in groapa de constructie folosindu-se franghii prinse de manerele de manipulare si se aşeaza intr-o pozitie stabila.
- Se realizeaza conectarea separatorului la instalatia existenta. Verificati corectitudinea montarii, urmarind semnele de curgere prevazut pe racordurile separatorului. Întotdeauna cota de intrare este mai sus decat cota de evacuare, astfel incat in interiorul separatorului are loc o curgere gravitationala.
- Se umple spatiul dintre peretii gropii şi cei ai caminului cu straturi de circa 25-30 cm cu pamant fara pietre, moloz sau alte particule proeminente care pot zgaria peretii sepratorului sau nisip cu o granulatie de 4/16. Fiecare strat trebuie compactat cu atentie astfel incat sa umple tot spatiul din jurul separatorului, pana la atingerea indicelui de compactare de minim 95%.
- ATENTIE! Pentru aplicatii speciale (ca de exemplu zona cu risc de inundare, s.a.) materialul de umplutura este fie nisip stabilizat fie beton. De asemenea separatorul poate fi ancorat de radierul de beton.
- In cazul in care in conditii hidrologice colaborate cu natura terenului nivelul apei freatice creste, separatorul se va aseza pe fundatie de beton dimensionata conform conditiilor hidrogeologice si statice ale pamantului si se va betona partial sau total, in functie de nivelul apei freatice. In cazul betonarii pentru echilibrarea presiunii exercitata de betonul turnat asupra peretilor caminului este necesar ca pe interior sa se sprijine cu o sipca sau prin umplerea acestuia cu apa. Turnare se face in straturi de cca 30 cm. Inainte de turnare betonului se scade nivelul apei din groapa prin pompare sub nivelul radierului de beton.
- La punerea in functiune, separatorul trebuie umplut cu apa.
- Sedimentul colectat si grasimile acumulate in separator se vidanjeaza de catre firme specializate pentru vidanjare. Dupa fiecare vidanjare separatorul se umple cu apa curata.
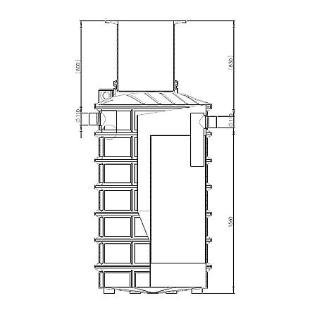
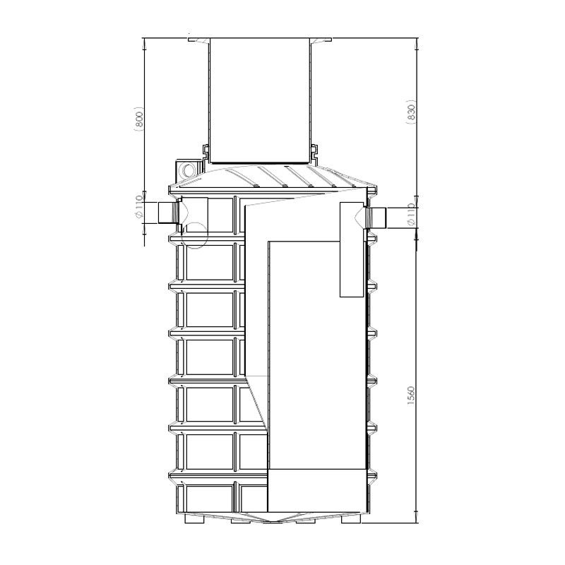
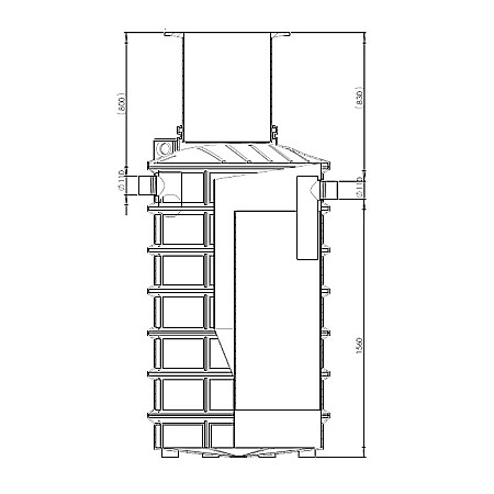
Specificatii tehnice
- Dimensiunea nominala: 4 l/s
- Forma: cilindrica vertical
- Dimensiuni (ØxH): 1100 x 2500 mm
- Conectari DN: 110 mm
- Inaltimea racordurilor intrare/iesire: 800/830 mm
- Volumul separatorului: 1170 l
- Volumul trapei de namol: 400 l
- Capacitatea depozitare grasimi : 160 l
- Nivel pentru cantitate maxima de grasimi: ≈ 300 mm
- Masa neta: 107 kg
- Material: Polietilena
- Capac: Necarosabil
