Magazin fizic si Showroom prezentare situat pe Bulevardul 1 Mai, nr. 43, comuna Berceni, Ilfov

Ariston PACHET POMPA DE CALDURA ARISTON NIMBUS M HYBRID 120 T NET R32 TRIFAZAT CU CENTRALA TERMICA GENUS ONE+ 35 KW

Ariston
36.108,80 RON
In stoc

Durata de livrare: 15-30 zile lucratoare

Limita stoc
Adauga in cos
Cod Produs: P_3302301 Ai nevoie de ajutor? 0726 802 707
Adauga la Favorite Cere informatii
  • Descriere
  • Download (1)
  • Review-uri (0)

Pachet pompa de caldura Ariston Nimbus Hybrid 120 M-T Net R32

Pompa de caldura monobloc cu inverter, conceputa pentru crearea unui sistem hibrid.Poate fi conectata doar cu o centrala Ariston Gama One.
Gama Hybrid NET este echipata cu un Energy Manager de ultima generatie dezvoltat complet de Ariston Group,care este capabil sa aleaga cea mai buna combinatie de functionare a centralei si a pompei de caldura pentru a asigura economii mari la factura: doar pompa de caldura,pompa de caldura si centrala,doar centrala.Descopera gama Hybrid NET.

Componente pachet

  • Nimbus M Hybrid 120 T Net R32 3302301 - 1 bucata
  • Centrala termica GENUS ONE+ 35 3302513- 1 bucata
  • Kit de evacuare 60/100 3318073 - 1 bucata
  • Tava scurgere condens (unitate externa) 3024383 - 1 bucata
  • Kit EXOGEL 3318771 - 1 bucata
  • Rezistenta anti-inghet unitate exterioara 3319087 - 1 bucata

Avantaje si beneficii

  • Gaz ecologic R32
  • COP pana la 5.1
  • Silentiozitate pana la 53 dB(A)
  • Gama de putere de la 1.7 la 17.7 kW
  • Sensys HD ca standard
  • Modul hibrid compact
  • Poate fi combinat cu orice centrala termica din gama One
  • Conectivitate Ariston NET standard
  • Gestionarea de la distanta cu aplicatia Ariston NET
  • Asistenta telefonica 24/7
  • Functia fotovoltaica

Functii Ariston Nimbus Hybrid

  • Conectivitate
  • Incalzire/racire
  • Super silentios

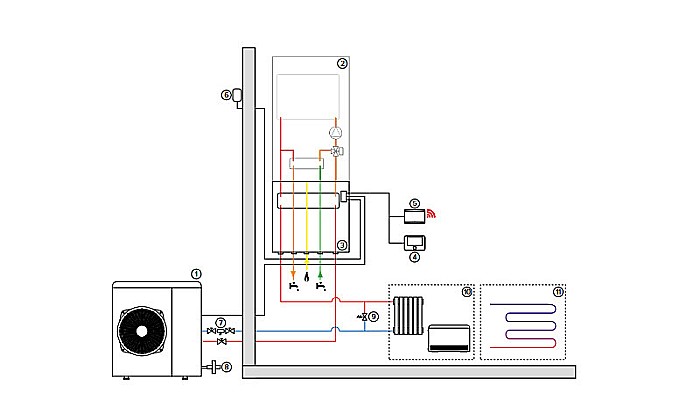
  1. Unitate exterioară
  2. Centrală termică mixtă
  3. Modul hibrid
  4. Telecomandă Sensys HD
  5. Dispozitiv de conectivitate Light Gateway
  6. Sondă externă
  7. Kit supapă și filtru
  8. Kit Exogel
  9. Supapă by-pass diferențială
  10. Zona de încălzire temperatură ridicată
  11. Zona de încălzire temperatură joasă

Unitate interna

Caracteristici

  • Gaz ecologic R32
  • COP pana la 5,1
  • Silentiozitate pana la 53 dB(A)
  • Gama de puteri de la 1.7 la 17.7 kW
  • Sensys HD dotare standard
  • Modul hibrid compact
  • Poate fi combinat cu orice centrala din gama One
  • Conectivitate Ariston Net standard
  • Gestionarea la distanta cu aplicatia Ariston Net
  • Teleasistenta 24/7 (optionala)
  • Functie integrare sistem fotovoltaic

Specificatii tehnice unitate interna

Performante in modalitatea de incalzire
  • Putere termica nom (Ta +7°C, Tw 35°C): 12.0 kw
  • COP nom (Ta +7°C, Tw 35 C): 4.9
  • Putere termica nom (Ta -7°C, Tw 35°C): 12.0 kW
  • COP nom (Ta - 7°C, Tw 35°C): 4.9
Performante in modalitatea de racire
  • Putere termica nominala (Ta 35°C, Tw 18°C): 10.7 kW
  • EER nom (Ta 35°C, Tw 18°C): 5.1

Unitate externa monobloc

  • Gaz ecologic R32
  • Extrem de silentios, pana la 53 dB(A)
  • Compresor DC Twin Rotary
  • Functionare cu inverter care reduce la minimum ciclurile on/off
  • Evaporator cu lamele cu tratament Blue Finn pentru rezistenta maxima la inghet

Specificatii tehnice unitate externa

Incalzire (performante la pompa de caldura)
  • T tur min/max (la pompa de caldura): -20/35°C
  • T aer min/max (la pompa de caldura): 20/60°C
  • T aer -7°C, T apa 35/30°C
    • Putere termica min/nom/max: 2.99/9.51/11.47 kW
    • Putere absorbita nom: 2.97 kW
    • COP nom: 3.20
  • T aer +7°C, T apa 35/30°C
    • Putere termica min/nom/max: 4.08/12.00/14.37 kW
    • Putere absorbita nom: 2.45 kW
    • COP nom: 4.90
  • T aer +7°C, T apa 45/40°C
    • Putere termica min/nom/max: 4.02/8.20/13.65 kW
    • Putere absorbita nom: 2.00 kW
    • COP nom: 4.10
Racire (performante la pompa de caldura)
  • T tur min/max (la pompa de caldura): 10/43°C
  • T aer min/max (la pompa de caldura): 5/23°C
  • T aer 35°C, T apa 7/12°C
    • Putere termica min/nom/max: 3.70/9.05/10.30 kW
    • Putere absorbita nom: 2.87 kW
    • EER nom: 3.15
  • T aer 35°C, T apa 18/23°C
    • Putere termica min/nom/max: 4.78/10.74/13.30 kW
    • Putere absorbita nom: 2.11 kW
    • EER nom: 5.08
Date tehnice
  • Puterea sonora a unitatii externe: 58 dB(A)
  • Energia absorbità anual: 5335 kWh/an
  • Randament pe sezon: 143%
  • Greutate: 131 kg
  • Tip de refrigerant: R32
  • Incarcare Refrigerant: 2100 g
  • GWP: 675
  • CO2 echivalenti: 1.42 t
  • Conexiune tevi intrare/iesire: 1"
  • Tensiune/faze/frecventa: 400/3/50 V/ph/Hz
  • Putere maxma absorbita: 5.00 kW
  • Tip de compresor: DC Twin Rotary
  • Gradul de protectie electrica: IP24
  • Continut minim de apa in componenta principala a instalatiei: 60.00 l

Vezi mai mult Informatii conformitate produs
  • PACHET POMPA DE CALDURA ARISTON NIMBUS M HYBRID 120 T NET R32 TRIFAZAT CU CENTRALA TERMICA GENUS ONE+ 35 KW - Fisa de produs

    Descarca
Daca doresti sa iti exprimi parerea despre acest produs poti adauga un review.

Review-ul a fost trimis cu succes.

Compara produse

Trebuie sa mai adaugi cel putin un produs pentru a compara produse.

A fost adaugat la favorite!

A fost sters din favorite!